Interlachen Drive
Ham Lake
SOLD
Proposed house for 50′ lot. We can also do one home and join the lots for 100′ lot Custom Designed home.
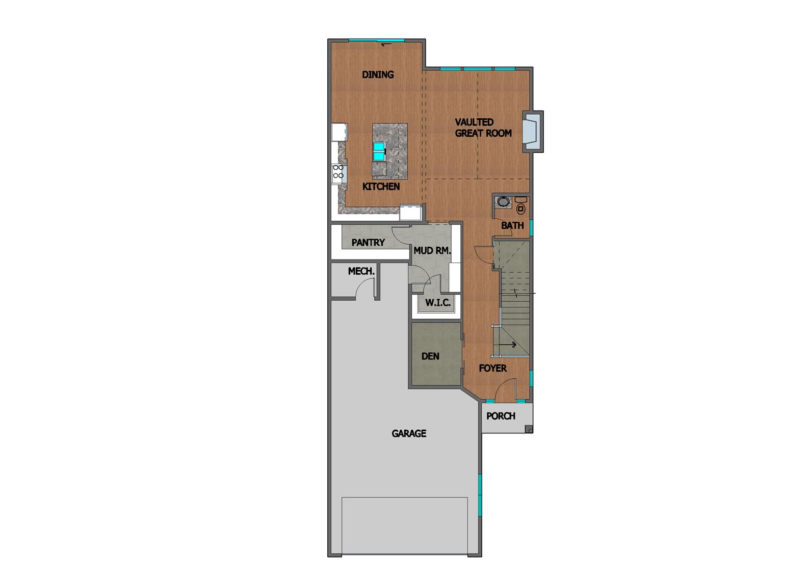
Lake Life! New construction “to be built” plan can be modified to your liking ~ This 3 bedroom + loft/ 3 bath plan features a vaulted great room with an open floor plan. Office/ Den on main floor. Spacious kitchen andlarge butler’s pantry with walk-in-closet & ample storage. Open staircase to loft in upper level onto luxuriousowner’s suite and two more beds - and laundry room. We have 2 adjacent lots available for custom building on. Coon Lake with 50 feet of lakeshore each at half an acre (0.50) - can be combined for building on 1 acre/ with100 feet of lakeshore!!
Features:
- Great Fishing lake for Bass,
- Northern and Pan Fish
- 3 Bedrooms + Loft
- 3 Baths
- TRIPLE CAR GARAGE (TANDEM)
- 1½ Story Great Room
- Enameled custom cabinets and woodwork
- Andersen 200 Series window.
- Huge walk-in pantry
- Loft room for kids
- Hardie Front, Vinyl siding exterior
- Asphalt driveway
- Insulated Garage
- Customize to your needs
- Call Tom or Justin for details
| Price | SOLD |
| MLS® # | |
| Address | 3837 Interlachen Drive Ham Lake, MN 55304 |
| Neighborhood | Coon Lake |
| Beds | 3+ Loft |
| Baths | 3 |
| Garages | 3 Stall Tandem |
| Living Area | 2,444 |
| Lot Size | 0.540 Acre |
| Year Built | 2024 |
| School District | Anoka-Hennepin |
